横浜市旭区若葉台2丁目 中古マンション
若葉台団地2-26号棟
中古マンション
横浜市旭区
2,780万円値下げ
- 専有面積
- 85.26㎡
- 所在地
- 横浜市旭区若葉台2丁目
- アクセス
- 東急田園都市線「青葉台」駅バス26分停歩3分
担当者のつぶやき
緑あふれる若葉台団地内の中古マンションです。前面棟がないので開放感があり陽当たり良好!エレベーター停止階の6階部分です。フルリノベーション工事中で令和7年12月末完成予定です。
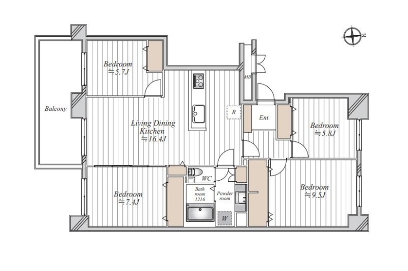
間取り/区画図
この物件のお問い合わせ
ローンシミュレーション
※返済年数35年、金利0.196% (変動金利) で算出しています。
※借入については金融機関の所定の審査があり、審査の結果によりご利用できない場合があります。
※金利は優遇金利適用の場合です。
※購入の際には別途諸費用が必要となります。 詳しくはスタッフまでお問い合わせ下さい。
物件詳細情報
| 種別 |
中古マンション |
価格 |
2,780万円値下げ |
| 管理費 |
8,350円 |
修繕積立金 |
11,500円 |
| 所在地 |
神奈川県横浜市旭区若葉台2丁目 |
アクセス |
東急田園都市線「青葉台」駅バス26分停歩3分 |
| 築年月 |
1981年7月 |
新築/中古 |
中古 |
| 専有面積 |
85.26㎡ |
計測方式 |
壁芯 |
| バルコニー |
8.88㎡ |
向き |
南 |
| 建物階数 |
地上13階 |
部屋階数 |
6階 |
| 建物構造 |
SRC |
| 間取内容 |
LDK16.4畳 / 洋室9.5畳 / 洋室7.4畳 / 洋室5.8畳 / 洋室5.7畳 |
| 駐車場 |
|
| 引渡/入居時期 |
2025年12月 |
現況 |
空室 |
| 地目 |
|
用途地域 |
第一種中高層住居専用 |
| 都市計画 |
市街化区域 |
地勢 |
|
| 土地面積 |
|
土地面積計測方式 |
|
| 建ぺい率 |
|
容積率 |
|
| 土地権利 |
所有権 |
接道状況 |
|
| 小学校 |
若葉台小学校
|
中学校 |
若葉台中学校
|
| 設備・条件 |
ペット可能 リノベーション 洗髪洗面化粧台 浴室乾燥機 温水洗浄便座 エアコン トランクルーム エレベータ バルコニー |
| 取引態様 |
仲介 |
お問い合せ番号 |
M2096 |
この物件のお問い合わせ
この物件を見た人は
他にこんな物件を見ています