横浜市瀬谷区三ツ境 中古戸建
中古戸建
三ツ境駅
2,480万円
- 建物面積
- 98.53㎡
- 土地面積
- 105.02㎡
- 所在地
- 横浜市瀬谷区三ツ境
- アクセス
- 相鉄本線三ツ境駅より 徒歩13分
相鉄本線希望ヶ丘駅より 徒歩16分
担当者のつぶやき
「三ツ境」駅徒歩13分・「希望ヶ丘」駅徒歩16分。4LDK中古戸建です。2025年6月リフォーム済(和室は洋室に変更)。固定階段で行きできるロフト6帖があり季節物の衣類や子供のおもちゃなどの収納スペースに最適です♪近隣には公園もあり緑豊かな環境。
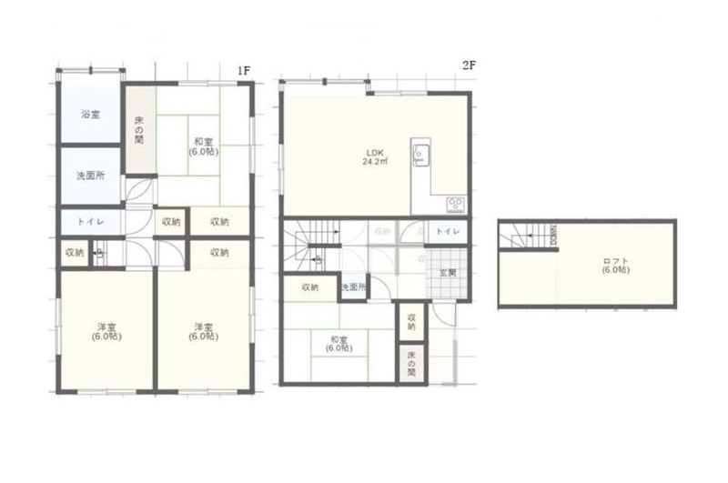
間取り/区画図
間取図
この物件のお問い合わせ
ローンシミュレーション
※返済年数35年、金利0.196% (変動金利) で算出しています。
※借入については金融機関の所定の審査があり、審査の結果によりご利用できない場合があります。
※金利は優遇金利適用の場合です。
※購入の際には別途諸費用が必要となります。 詳しくはスタッフまでお問い合わせ下さい。
物件詳細情報
| 種別 |
中古戸建 |
価格 |
2,480万円 |
| 所在地 |
神奈川県横浜市瀬谷区三ツ境 |
アクセス |
相鉄本線三ツ境駅より 徒歩13分 相鉄本線希望ヶ丘駅より 徒歩16分 |
| 築年月 |
1991年12月 |
新築/中古 |
中古 |
| 建物面積 |
98.53㎡ |
計測方式 |
壁芯 |
| バルコニー |
|
向き |
|
| 建物構造 |
木造 |
建物階数 |
地上2階 |
| 間取内容 |
1階 洋室6.0畳 3部屋 / 2階 洋室6.0畳 / 2階 LDK |
| 駐車場 |
無 |
| 引渡/入居時期 |
相談 |
現況 |
空家 |
| 地目 |
宅地 |
用途地域 |
第一種低層住居専用 |
| 都市計画 |
市街化区域 |
地勢 |
|
| 土地面積 |
105.02㎡ |
土地面積計測方式 |
公簿 |
| 建ぺい率 |
50% |
容積率 |
100% |
| 土地権利 |
所有権 |
接道状況 |
一方 |
| 接道方向1 |
|
接道間口1 |
2.0m |
| 接道種別1 |
|
接道幅員1 |
4.0m |
| 接道方向2 |
|
接道間口2 |
|
| 接道種別2 |
|
接道幅員2 |
|
| 小学校 |
三ツ境小学校
|
中学校 |
原中学校
|
| 設備・条件 |
ロフト付き 都市ガス |
| 取引態様 |
仲介 |
お問い合せ番号 |
C2562 |
この物件のお問い合わせ
この物件を見た人は
他にこんな物件を見ています